Mester-fogás
Építészek a falanszterrel szemben. a legendás miskolci Kollektív Ház, 1979-1990
Szerkesztő: Pozsgai Nóra
Elhangzott: 2025.10.31. 23:00
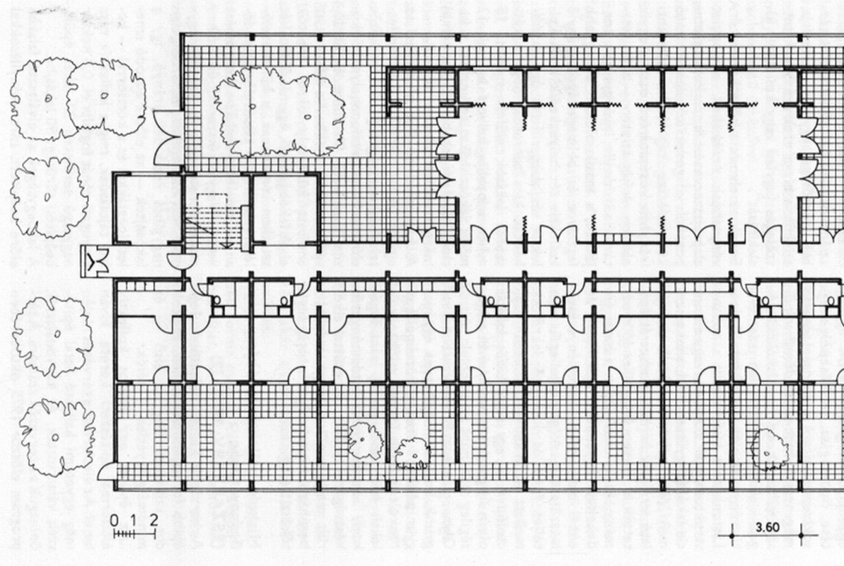
A 70-es évek euforikus kulturális hullámában egy csapat fiatal építészhallgató -- a 2. VH után felnőtt fiatalok, az ún Nagy Generáció tagjai -- közösséget alkotnak, és elhatározzák: az egyetem után is együtt maradnak. A korszellemtől ihletett életérzés testet öltött: így született meg Miskolcon a Kollektív Ház, ahol a fiatal építészek családjaikkal alkotó közösségben éltek együtt egy maguk tervezte nagyközös házban. A 70-es évek végétől a rendszerváltásig tartó kaland valódi szellemi műhely volt, amelynek messze földről a csodájára jártak. alapító tagja volt Golda János Ybl-díjas építész, a Piarista Rend főépítésze, a MMA tagja -- vele idézzük fel az egykori legendás miskolci Kollektív Házat.
Kapcsolódó képek:
2026. február 07. szombat 9:04 |
|
Mester-fogás Fazekas József kad- és késkovács,
a damaszk penge mestere, és a Balassi-kard készítője
Szerkesztő: Pozsgai Nóra » bővebben...Közel 40 éve foglalkozik a kovácsmesterséggel. Késeit, kardjait hagyományos módszerekkel készíti, mert vallja, hogy a valódi minőséget a hagyományos kézműves módszerek eredményezik. Fő specialitása a damaszk acél, amely ma újra reneszánszát éli, és a japán kard, amelyről könyvet is írt. De éppúgy otthon van a korhű technikák és kardok területén. És a Balassi-kardot is ő kovácsolja, a díj alapítása óta.
Műhelyéből nem kerülnek ki egyforma darabok, minden tárgya egyedi, egyszeri és megismételhetetlen. A markolatokat kizárólag természetes anyagból, sokszor igen ritka portékából készíti, melyeknek már a nevük is különleges: sivatagi vasfa, wenge, bokote, zirikote, ében, banksia… De felhasznál csontokat, halbőrt, sőt, fosszíliákat is.
Bonyhádi műhelyében jártunk.
|
2026. január 23. péntek 18:04 |
|
Mester-fogás Szolnoki Ágnes madár- és rovarfestő, természet-illusztrátor
Szerkesztő: Pozsgai Nóra » bővebben...Csak hazai madár- és rovarfajokat fest. Képei élethűek, ám nem szenvtelen, tűpontos tanulmányok, hanem átsugárzik rajtuk az a mélységes, nem birtokolható, csak ajándékul fogadható öröm, ami a természetben csöndben rácsodálkozni tudó ember osztályrésze. A szemlélődő jelenlét boldogsága
Akvarelljeit füzetre, kártyára, pólóra is nyomtatja, ünnepivé emelve a hétköznap tárgyait, amelyeket így hazavihetünk, hogy a mindennapok rutinja, határidői, kötelezességei között emlékeztessenek: ideje megállni – és kimenni a természetbe. |
2026. január 09. péntek 18:04 |
|
Mester-fogás MAUNA -- A magyar, kézzel készült prémium túrabakancs
Szerkesztő: Pozsgai Nóra » bővebben... |
2025. december 26. péntek 18:04 |
|
Mester-fogás A misztikus német apáca, aki látta a Jézus születését
Boldog Emmerick Anna Katalin látomásai
Szerkesztő: Pozsgai Nóra » bővebben...Boldog Emmerick Anna Katalin látomásaiban olyan részletesen írta le Mária és Jézus életének helyszíneit és eseményeit, hogy még Mel Gibson is ezekből merített A Passió készítésekor. Szavai alapján Clemens Brentano hatkötetes műben örökítette meg a csodálatos történetet. Az első könyv Szűz Mária életét írja le, amely a karácsonyi eseményeket is magában foglalja.
A műsorban ebből idézünk részleteket, és Mohos Gábor Esztergom-Budapesti segédpüspökkel , a Budapesti Szent István bazilika plébánosával beszélgetünk Katalin látomásairól. |
2025. december 12. péntek 18:04 |
|
Mester-fogás Budapest adventi fénybe öltözött. De kik az "öltöztetők"?
Budapesti Dísz- és Közvilágítási Np. Kft
Szerkesztő: Pozsgai Nóra » bővebben...Mikor és hányan szerelnek? Milyen díszek vannak? Miért tűnnek el a fényfüzérek? Hogyan tud környezetbarát lenni a díszkivilágítás? Miért égtek a díszek a Covid alatt is?
Vendégünk Tamás László, a BDK - Budapesti Dísz- és Közvilágítási Nonprofit Kft üzemeltetési vezetője. |
2025. november 28. péntek 18:04 |
|
Mester-fogás Van aki törődik a lápi póccal
Védett halak génmegőrzése Gödöllőn
2. rész
Szerkesztő: Pozsgai Nóra » bővebben...A Nemzeti Biodiverzitás és Génmegőrzési Központ Vízigenetikai Erőforrások Megőrzése osztály Gödöllő-isaszegi tórendszerének kisebb-nagyobb tavai körül barangolunk, ahol elhivatott szakemberek a lápi élőhelyek veszélyeztetett őshonos magyar halfajaival foglalkoznak. Riportunk első részében a széles kárász, compó, lápi póc génmegőrzéséről, szaporításáról, visszatelepítéséről beszélgettünk a benti medencéknél. Most pedig a kültéri tavaknál sétálva szó lesz a pazar madárvilágról, a vízproblémákról, a hely történetéről, és megnézzük, mi minden épül itt hamarosan, aminek nemcsak a tudomány, hanem az ide látogató gyereksereg is örülhet majd. |
2025. november 27. csütörtök 18:04 |
|
Mester-fogás Ki törődik a lápi póccal?
Génmegőrzés magasfokon
Dr Lehoczky István, Gödöllő
1.rész
Szerkesztő: Pozsgai Nóra » bővebben...A láp, a mocsár, a berek egyedülálló életközösség, százféle madár, furcsa, vízben úszkáló csigák-bogarak, érdekes, csak itt élő halak otthona. Például a lápi pócé. Ezt a szép, apró ragadozóhalat a közönség 2023-ban az Év Halának választotta meg, ám ez a kitüntető cím még nem menti meg a kipusztulástól. Szerencsére van, aki törődik vele.
műsorban Gödöllőre látogatunk, a Nemzeti Biodiverzitás és Génmegőrzési Központ lápi halakra szakosodott telepére. Kalauzunk Dr Lehoczky István, a Központ Vízigenetikai Erőforrások Megőrzése osztályának vezetője. |
2025. november 14. péntek 18:04 |
|
Mester-fogás Szent Miklós és püspöki ornátus
A Váci Egyházművészeti Gyűjteményben
Szerkesztő: Pozsgai Nóra » bővebben...A Váci Egyházművészeti Gyűjteményben Dr. Varga Lajos váci segédpüspökkel idézzük fel
Szent Miklós püspök alakját, és beszélgetünk a régi és mai püspöki viseletről és ábrázolásairól.
(Képek: 1. Dr. Varga Lajos váci megyéspüspök 2023. október 8-án, a szolnoki templom évfordulós ünnepi szentmiséjén; 2. Szent Miklós szobra a szent ereklyéjét őrzőSzent Miklós bazilikában, az olaszországi Bariban) |
2025. október 31. péntek 18:04 |
|
Mester-fogás Építészek a falanszterrel szemben. a legendás miskolci Kollektív Ház, 1979-1990
Szerkesztő: Pozsgai Nóra » bővebben...A 70-es évek euforikus kulturális hullámában egy csapat fiatal építészhallgató -- a 2. VH után felnőtt fiatalok, az ún Nagy Generáció tagjai -- közösséget alkotnak, és elhatározzák: az egyetem után is együtt maradnak. A korszellemtől ihletett életérzés testet öltött: így született meg Miskolcon a Kollektív Ház, ahol a fiatal építészek családjaikkal alkotó közösségben éltek együtt egy maguk tervezte nagyközös házban. A 70-es évek végétől a rendszerváltásig tartó kaland valódi szellemi műhely volt, amelynek messze földről a csodájára jártak. alapító tagja volt Golda János Ybl-díjas építész, a Piarista Rend főépítésze, a MMA tagja -- vele idézzük fel az egykori legendás miskolci Kollektív Házat. |
2025. október 17. péntek 18:04 |
|
Mester-fogás A madarakban vonuló csillagos égbolt képei: Gyöngy Enikő zománcművész, Debrecen
Szerkesztő: Pozsgai Nóra » bővebben...A madarakban vonuló csillagos égbolt képei - Szántai Lajos nevezte így egy kiállítás megnyitón a Ferenczi Noémi-díjas ötvös- és zománcművész mitikus hangulatú, elmélyült zománcképeit, amelyken a madarak, szarvasok, izzó nap és csillagok hullámzása közt fel-felbukkanó emberalak talán leginkább a lézezés teljességét, mélységét idézi meg. Ékszereit: a változatos formájú, cizellált medálokat, fülbevalókat pedig sokféle virág, Mária arc vagy stilizált angyal teszi varázslatossá. Az idei Mesterségek Ünnepén kértük mikrofon elé. |
2026. február 08. vasárnap 1:00 | Mester-fogás (ism.) Fazekas József kad- és késkovács,
a damaszk penge mestere, és a Balassi-kard készítője
Szerkesztő: Pozsgai Nóra » bővebben...Közel 40 éve foglalkozik a kovácsmesterséggel. Késeit, kardjait hagyományos módszerekkel készíti, mert vallja, hogy a valódi minőséget a hagyományos kézműves módszerek eredményezik. Fő specialitása a damaszk acél, amely ma újra reneszánszát éli, és a japán kard, amelyről könyvet is írt. De éppúgy otthon van a korhű technikák és kardok területén. És a Balassi-kardot is ő kovácsolja, a díj alapítása óta.
Műhelyéből nem kerülnek ki egyforma darabok, minden tárgya egyedi, egyszeri és megismételhetetlen. A markolatokat kizárólag természetes anyagból, sokszor igen ritka portékából készíti, melyeknek már a nevük is különleges: sivatagi vasfa, wenge, bokote, zirikote, ében, banksia… De felhasznál csontokat, halbőrt, sőt, fosszíliákat is.
Bonyhádi műhelyében jártunk.
|
2026. február 21. szombat 9:04 | Mester-fogás Szerkesztő: Pozsgai Nóra |
2026. február 22. vasárnap 1:00 | Mester-fogás (ism.) Szerkesztő: Pozsgai Nóra |
2026. március 07. szombat 9:04 | Mester-fogás Szerkesztő: Pozsgai Nóra |
2026. március 08. vasárnap 1:00 | Mester-fogás (ism.) Szerkesztő: Pozsgai Nóra |